HOME
PORTFOLIO
ESTUDIO
CONTACTO
HOME
PORTFOLIO
ESTUDIO
CONTACTO
Lun-Vie 09.30 - 17.30
54 11 4702 4501
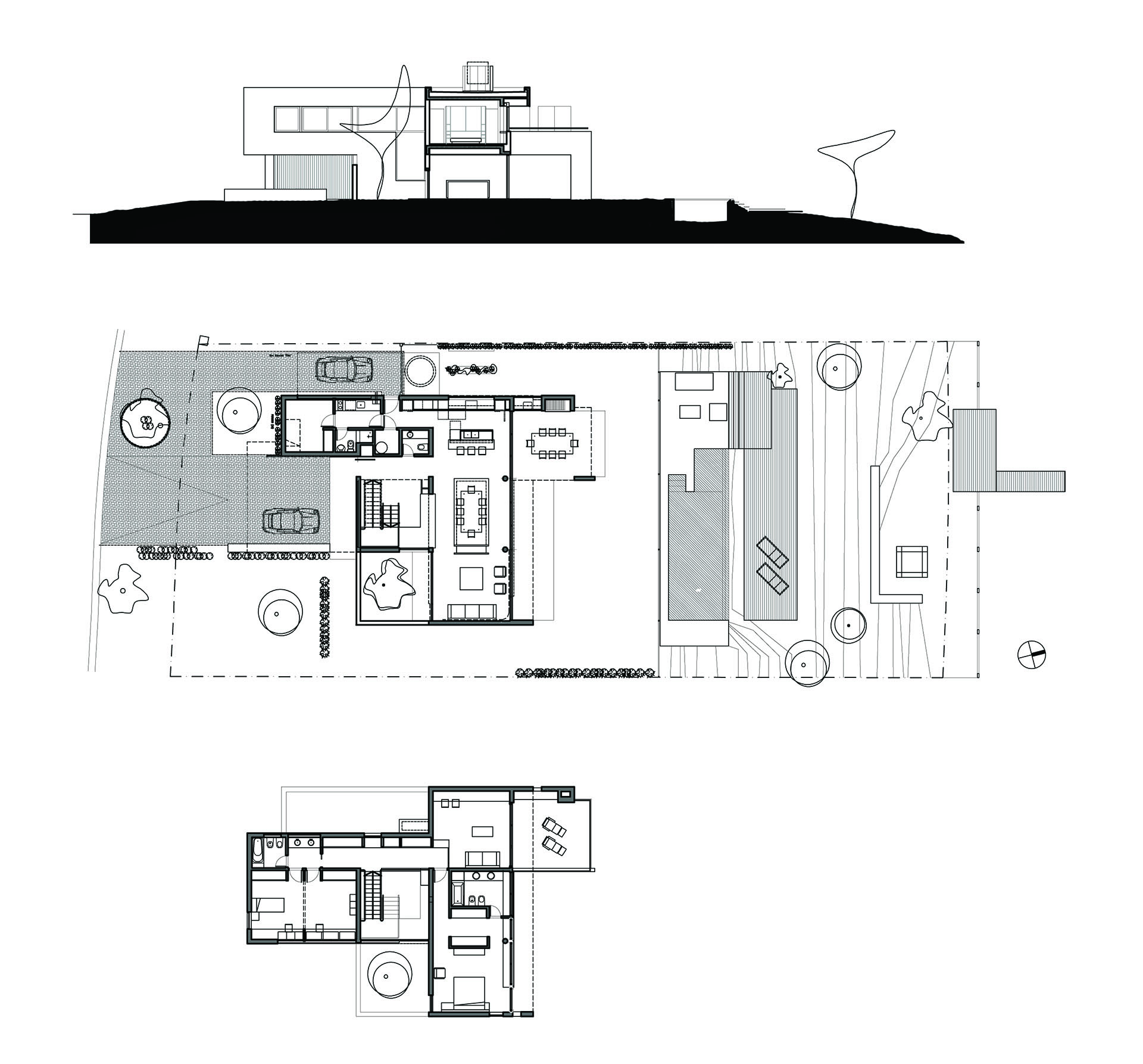
Casa San Agustin
Other
Projects
Directorio 467
Previous Project
Local Amatore
Next Project